以诚为本赢在诚信9001暖通空调设计软件

以诚为本赢在诚信9001ACS暖通空调设计软件,是基于 AutoCAD平台,全新开发的暖通空调设计软件。以绘图快、计算准为宗旨,符合国内规范、标准,兼有智能联动、智能消隐、智能标注、二三维一体化、计算与绘图数据互通特性,高效易用。

申请试用 操作教程 下载链接

核心价值

专业性、兼容性

图符画法符合规范图集,满足施工图标准。

计算过程严格依据规范手册。



智能化、人性化

管道、设备等实体支持双击、夹点编辑操作。当管道或附件夹点移动或尺寸变化时,与之相连的实体会自动移动、适应尺寸变化,保持连接位置、尺寸的完好、标注数值的正确;自动处理遮挡关系。


操作便捷,容易上手

软件大部分操作都采用无模式窗口加命令行提示的交互方式,界面统一、参数易懂;采用二、三维同步、所见所得方式,以简洁步骤建立丰富数据模型; 具有强大的批量修改功能,提高绘图及改图效率。


功能介绍

  • 协同、统一绘图标准:

    基于同一底层架构及统一的绘图标准设置。不同专业实体可互相识别,并进行三维碰撞检测等协同设计。

  • 空调风系统设计

    风管绘制支持精准定位及实时计算阻力等功能;支持风口与风管可批量连接;水力计算可直接提取平面图进行计算,计算后赋回原图;支持单、双线两种模式,可直接编辑互相转换。

  • 空调水系统设计

    绘制支持各种定位及实时计算阻力等功能;管线与风机盘管等设备可批量连接,自动生系统图;水力计算可直接提取平面图进行计算并赋回;支持单、双线两种模式,可直接编辑互相转换。

  • 采暖(地板采暖)系统

    可快捷进行传统形式的采暖系统、分户计量系统的平面图、系统图设计;支持散热器与管道多种连接方式,平面图自动生成系统图;水力计算直接提取系统图进行水力计算, 计算后自动赋回平面、系统。

  • 多联机

    内含设备厂商(软件内含大金、东芝美的等)产品数据库,使用者很方便的行快速设计计算,提供布置设备、管线绘制连接、系统划分计算、生成轴测图系统图、批量修改及标注等功能.

  • 防排烟设计

    支持直接提取平面定义的防烟分区到软件计算;支持机械防排烟,自然排烟计算;多种系统对象: 楼梯间,避难层,地下汽车库,中庭,房间等; 支持计算结果赋回图面;可输出 Excel 格式报表和 Word 格式报表。

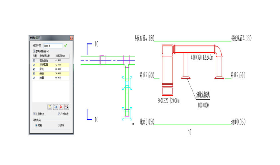
  • 强大的剖面图功能

    支持不同方式剖切及放大剖切,且修改原图后,剖切图可自动更新联动,剖面图中,支持标注风管尺寸、风口参数等。

  • 可扩充标准化图层模板

    图层管理满足定制需求,并且基于图形保存机制,样式随图走,保证同一张图在不同机器上绘图样式的统一性;支持导入和识别 ACS10.0 的图层模板,支持增量更新。